Olá pessoas! Já faz um tempo que eu não posto aqui no blog e venho novamente com o mesmo motivo (acho que vocês já sabem qual é): faculdade, projeto, estágio, enfim, aquela rotina básica de um estudante de arquitetura. Mas a boa notícia de tudo isso é que finalmente estou chegando (de verdade) nos períodos finais da faculdade.
Para aqueles que não sabem, eu estudo na UFRJ cursando o nono período. No nono nós temos dois projetos: o projeto executivo e o projeto final de graduação 1 (TFG1). Eu como uma típica estudante resolvi (pela milésima vez) dividir mais uma vez o período. A diferença é que dessa vez eu dividi sem o menor peso na consciência, eu realmente queria produzir um bom projeto (tanto executivo quanto final). Eu resolvi fazer primeiro o projeto executivo e período que vem (daqui a uma semana) eu devo partir para o início do meu projeto final.
Sobre o projeto
Pois bem, esse período eu trabalhei em conjunto com a minha amiga de longa data, Letícia Félix, em um projeto executivo de uma casa na árvore. Sim, você ouviu certo. Uma casa na árvore. O primeiro e grande desafio que tivemos foi com a questão do tipo de árvore e do tipo de encaixe que utilizaríamos no projeto. Fazendo algumas pesquisas conseguimos selecionar algumas espécies e acabamos escolhendo o Eucalipto por ser uma espécie resistente e muito utilizada em casas na árvore.

O segundo desafio foi saber como poderíamos sustentar a casa utilizando as árvores. Não tínhamos um terreno específico e para que o projeto realmente funcionasse precisaríamos ter algum parâmetro de como seria a implantação das árvores. Para solucionar essa questão escolhemos plantações de eucaliptos, já que estas possuem um espaçamento fixo entre as árvores. Basicamente existem dois tipos de plantações: A que é feita em pequena e escala e a que é feita em grande escala. A primeira utiliza um espaçamento de dois metros enquanto a segunda utiliza um espaçamento de três em três metros. Ficamos com a segunda opção. Definido isso, passamos para a próxima fase que seria solucionar o problema da sustentação da casa. Queríamos uma solução que trouxesse leveza mas que ao mesmo tempo fizesse a casa “pertencer” ao ambiente natural a qual as árvores estavam plantadas. Com um pouco de pesquisa conseguimos achar uma espécie de parafuso utilizado para fixar casas em árvores. Escolhemos esse sistema para apoiar a casa.
Os materiais

A casa seguiu um padrão modular que se encaixava por dentro dos troncos das árvores. O material utilizado foi principalmente a madeira, mas também utilizamos aço nos parafusos e alumínio nas esquadrias. O acesso principal é realizado através de uma escada que dá para uma área externa de convívio, compartilhada por duas casas. A ideia é que as casas sejam replicadas de acordo com a necessidade de cada local.
Relação interior/exterior:
A casa em si compartilha a área externa com o vizinho mas também possui uma área privada, um terraço na qual o morador pode desfrutar da vista da natureza ao seu redor. Uma grande fachada de vidro foi implantada, trazendo a natureza para dentro da área interna, fazendo com que o morador desfrute da vista enquanto circula pela casa.
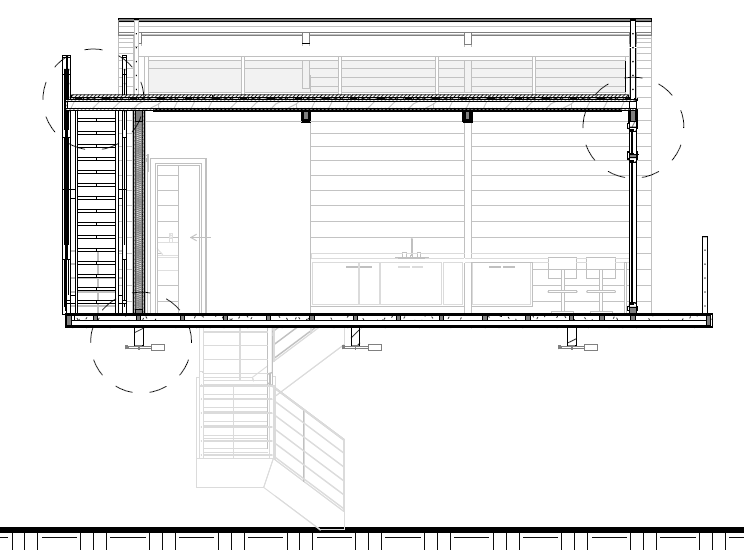
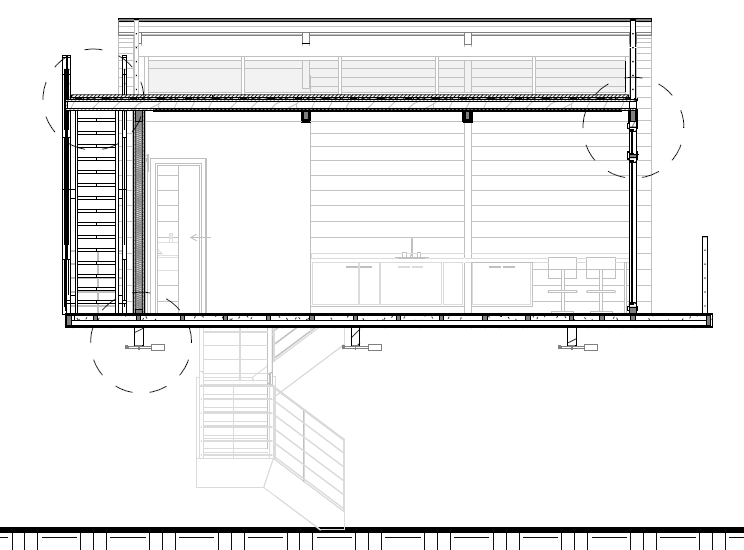
Planta do 1º Pav. e planta da trama da laje (feita de madeira, apoiada em vigas que se conectam às árvores por meio dos parafusos):

No interior da casa, os ambientes são totalmente integrados. Sala e cozinha tornam-se um único ambiente, enquanto que da sala é possível ter uma conexão direta com o quarto.


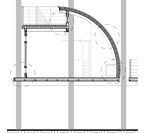
Na cobertura instala-se uma grande curva que quebra com a geometria retangular das paredes, fazendo com que esta se abra diretamente para a natureza. Aqui, cobertura e terraço se unem em um único sentido, dando abertura para a natureza ao redor da casa.
A forma de representação:
Para esse projeto, utilizamos o formato A2 para a apresentação, fora a maquete física em 1:25. Eu particularmente confesso que eu nunca demorei tanto para “conceber” uma diagramação por um pequeno problema: as imagens eram muito grandes (escala 1:25)! Levei uma tarde inteira quebrando a cabeça para descobrir qual seria a melhor forma de mostrar os desenhos e principalmente, valorizar o projeto. A forma que eu vi que melhor se adequava ao que eu precisava era trabalhando com as pranchas na vertical, contendo cada uma um desenho e dois detalhes construtivos.
Ao lado: Maquete física que nos custou algumas horas de puro estress. Mas conseguimos, isso é o que importa.
Diagramação e conteúdo das pranchas:
Escolhemos duas fachadas para mostrar nos desenhos. Em ambas as vistas utilizamos a sombra para dar a ideia de profundidade. Todo o projeto foi feito no Revit. A imagem em 3D da estrutura, os renders e todos os desenhos foram exportados do Revit. As vistas e as perspectivas foram trabalhadas posteriormente no Photoshop, junto com a diagramação. As legendas dos detalhes foram inseridos nas pranchas de baixo, estabelecendo uma conexão destas com as pranchas de cima. Uma faixa com transparência foi utilizada como fundo, para que se mantivesse a visão da árvores e ao mesmo tempo permitisse uma fácil leitura do texto. As cores utilizadas foram basicamente preto e cinza. Para os detalhes utilizou-se o laranja. O uso de cores variadas destacam-se mais nas perspectivas.
Corte transversal e longitudinal:
Por fim, foram detalhados os encontros da laje com a cobertura, da cobertura com o terraço, das esquadrias e da escada.
Detalhes construtivos:
Bem pessoas, é isso! Eu espero que vocês tenham gostado desse post. Em breve eu devo lançar um post falando um pouco sobre detalhamento no Revit e pós-produção de imagens no photoshop, criando o efeito que eu criei nas imagens das perspectivas desse projeto. Eu também lancei lá no canal um vídeo falando um pouco sobre as pranchas. Se você ainda não conhece o meu canal, CLICA AQUI e confere tudo de bom que rola por lá!
Lembrando sempre que se você gostou desse post, é só clicar em curtir aqui embaixo e compartilhar clicando nos botões no fim do post!
Abraços e até a próxima,
Marina



















Olá Marina! Tudo bom? Nesse projeto você mostrou o detalhamento entre o encontro do parafuso e entre a madeira (ou algo assim) e me surgiu uma dúvida. Enquanto arquiteta, se você propor algo novo é você que deve mostrar a solução construtiva para isso? No caso, mostrar o detalhe foi exigência da disciplina ou você que quis fazer? Porque eu sei que na prática (pelo menos no escritório onde faço estágio) tem o engenheiro que cuida disso, mas sei também que o arquiteto tem tal habilidade hihi. Achei um máximo o nível técnico que seu projeto teve.
Oi Marianna! Tudo bem?!
Então, enquanto arquiteta, claro que sim! Nesse caso, foi uma exigência da matéria, mas esse parafuso ele já existe, então na prática eu não teria que “criar” esse elemento. Mas se não existia ainda assim seria possível fazê-lo (só que teria que ser avaliado se ele seria produzido em grande escala, etc). O engenheiro também pode fazer isso, mas o campo de arquitetura aborda a área de estrutura, o arquiteto tem a função de propor essas soluções estruturais.
Obrigada pelo seu comentário!
Bjss,
Marina
vc previu o aumento do diâmetro do caule das arvores?